5階 505は現在募集がありません
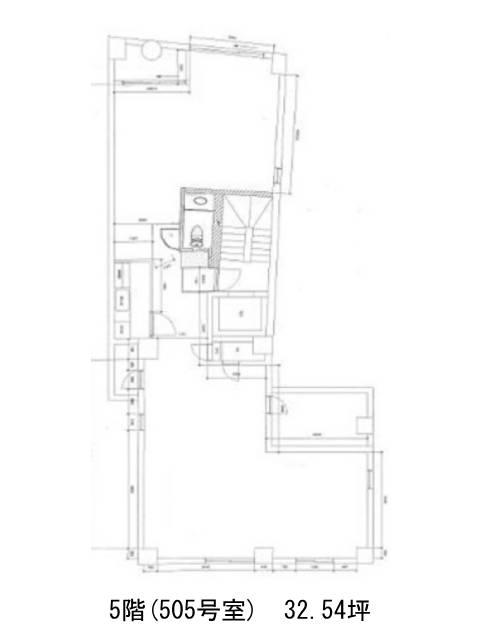
森山ビル(東館) 5階 505
物件概要
森山ビル(東館)のテナント募集中区画
現在、空室がございません。
アクセス
森山ビル(東館)の物件情報
森山ビル(東館)(新宿区四谷三栄町)は四ツ谷駅(3番出口)から徒歩6分の賃貸オフィスです。森山ビル(東館)は四ツ谷駅(3番出口)の他に四谷三丁目駅(3番出口)徒歩8分、曙橋駅(A4番出口)徒歩10分で利用も可能です。

