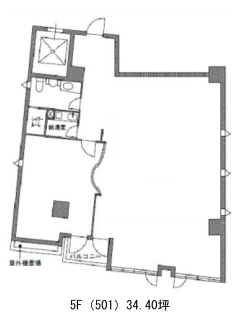
5階 501は現在募集がありません
都住創山吹町ビル 5階 501
物件概要
都住創山吹町ビルのテナント募集中区画
現在、空室がございません。
アクセス
都住創山吹町ビルの物件情報
都住創山吹町ビル(新宿区山吹町)は江戸川橋駅(1b番出口)から徒歩7分の賃貸オフィスです。都住創山吹町ビルは江戸川橋駅(1b番出口)の他に早稲田駅(1番出口)徒歩10分、神楽坂駅(2番出口)徒歩11分で利用も可能です。

