6階は現在募集がありません
四谷トーセイビル 6階
物件概要
四谷トーセイビルのテナント募集中区画
現在、空室がございません。
アクセス
四谷トーセイビルの物件情報
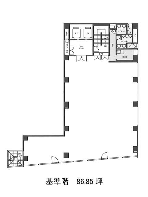
四谷トーセイビル(新宿区四谷)は四谷三丁目駅(2番出口)から徒歩4分の賃貸オフィスです。1990年竣工で9階建てのSRC構造です。新耐震基準に適合しているので地震にも強い造りとなっています。全面ガラス張りが大変美しいビルで、窓からは太陽光が良く入ってきます。2006年にリニューアル工事が実施されており、エントランスホールやエレベーターホールは赤を基調とした個性的な空間に仕上がっております。基準階坪数は約80坪で、貸室内は綺麗な形なのでレイアウトは組みやすいでしょう。個別空調を完備、男女別のトイレ設置です。四谷トーセイビルは四谷三丁目駅(2番出口)の他に新宿御苑前駅(2番出口)徒歩7分、曙橋駅(A1番出口)徒歩10分で利用も可能です。

