四谷トーセイビル 8階
物件概要
物件番号
208-00010-80物件名
四谷トーセイビル所在地
- 東京都新宿区四谷4-3
- アクセスマップ
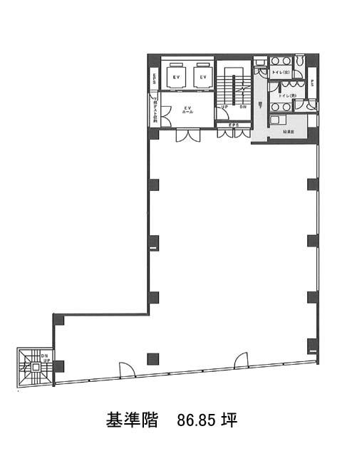
面積
86.85坪賃料(共益費含)
:応相談応相談
入居日
2026年8月上旬保証金
応相談礼金
なし更新料
なし償却費
なし竣工
1990年11月構造
SRC規模
地上9階トイレ
男女別空調
個別空調エレベーター
有セキュリティ
有駐車場
有耐震
新耐震基準基準階天井高
2560mm空室延床面積
260.55坪情報更新日
2026/04/06四谷トーセイビルのテナント募集中区画
| 階数 | 面積 | 賃料(共益費含む) | 保証金 | 入居可能日 | 検討リスト | 詳細 |
|---|---|---|---|---|---|---|
| 7 | 86.85坪 | 応相談(応相談) | 応相談 | 2026年8月上旬 | ||
| 8 | 86.85坪 | 応相談(応相談) | 応相談 | 2026年8月上旬 | ||
| 9 | 86.85坪 | 応相談(応相談) | 応相談 | 2026年8月上旬 |
…新着物件
四谷トーセイビルのアクセス
四谷トーセイビルの物件情報
四谷トーセイビル(新宿区四谷)は四谷三丁目駅(2番出口)から徒歩4分の賃貸オフィスです。1990年竣工で9階建てのSRC構造です。新耐震基準に適合しているので地震にも強い造りとなっています。全面ガラス張りが大変美しいビルで、窓からは太陽光が良く入ってきます。2006年にリニューアル工事が実施されており、エントランスホールやエレベーターホールは赤を基調とした個性的な空間に仕上がっております。基準階坪数は約80坪で、貸室内は綺麗な形なのでレイアウトは組みやすいでしょう。個別空調を完備、男女別のトイレ設置です。四谷トーセイビルは四谷三丁目駅(2番出口)の他に新宿御苑前駅(2番出口)徒歩7分、曙橋駅(A1番出口)徒歩10分で利用も可能です。

