第3ダイヤモンドビルのテナント募集中区画
| 階数 | 面積 | 賃料(共益費含む) | 保証金 | 入居可能日 | 検討リスト | 詳細 |
|---|---|---|---|---|---|---|
| 7 | 29.80坪 | 458,920円/月(15,400円/坪) | 250万円 | 即 |
…新着物件
第3ダイヤモンドビルのアクセス
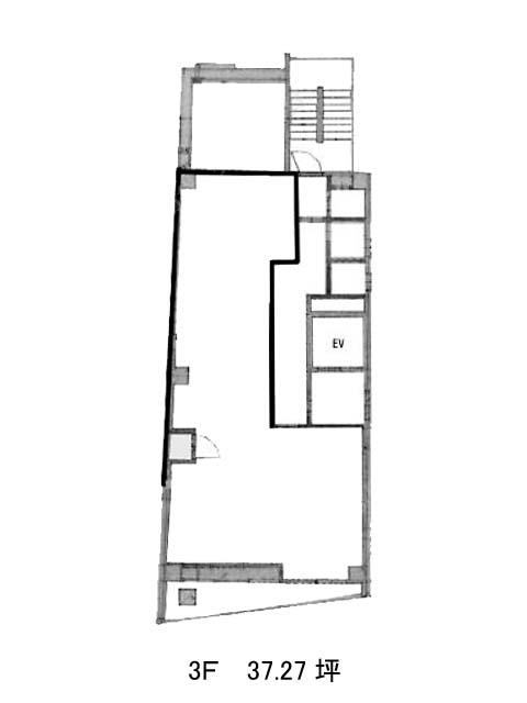
第3ダイヤモンドビルの物件情報
第3ダイヤモンドビル(新宿区四谷)は四谷三丁目駅(3番出口)から徒歩5分の賃貸オフィスです。第3ダイヤモンドビルは四谷三丁目駅(3番出口)の他に四ツ谷駅(2番出口)徒歩7分、曙橋駅(A1番出口)徒歩9分で利用も可能です。

