第3ダイヤモンドビル 7階
物件概要
物件番号
208-00170-23物件名
第3ダイヤモンドビル所在地
- 東京都新宿区四谷2-12
- アクセスマップ
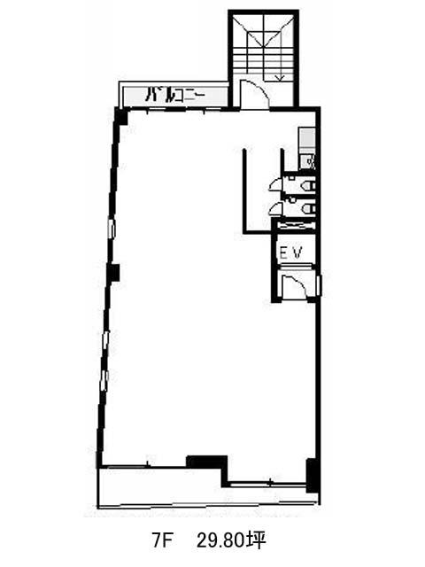
面積
29.80坪賃料(共益費含)
月額458,920円(15,400円/坪)
入居日
2025年12月中旬保証金
2,503,200円礼金
なし更新料
新1ケ月償却費
2ケ月竣工
1979年8月構造
SRC規模
地上7階トイレ
男女別空調
個別空調エレベーター
有セキュリティ
駐車場
無耐震
耐震補強済み基準階天井高
空室延床面積
29.80坪情報更新日
2025/11/17第3ダイヤモンドビルのテナント募集中区画
| 階数 | 面積 | 賃料(共益費含む) | 保証金 | 入居可能日 | 検討リスト | 詳細 |
|---|---|---|---|---|---|---|
| 7 | 29.80坪 | 458,920円/月(15,400円/坪) | 250万円 | 2025年12月中旬 |
…新着物件
アクセス
第3ダイヤモンドビルの物件情報
第3ダイヤモンドビル(新宿区四谷)は四谷三丁目駅(3番出口)から徒歩5分の賃貸オフィスです。第3ダイヤモンドビルは四谷三丁目駅(3番出口)の他に四ツ谷駅(2番出口)徒歩7分、曙橋駅(A1番出口)徒歩9分で利用も可能です。

