ロリエ四谷ビル 3階
物件概要
物件番号
208-00018-30物件名
ロリエ四谷ビル所在地
- 東京都新宿区四谷3-1-5
- アクセスマップ
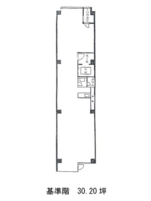
面積
30.20坪賃料(共益費含)
月額498,300円(16,500円/坪)
入居日
即保証金
3,624,000円礼金
2ケ月更新料
新1ケ月償却費
なし竣工
1981年5月構造
RC規模
地上8階/地下1階トイレ
男女共用空調
個別空調エレベーター
有セキュリティ
駐車場
無耐震
旧耐震基準基準階天井高
空室延床面積
30.20坪情報更新日
2026/02/18ロリエ四谷ビルのテナント募集中区画
| 階数 | 面積 | 賃料(共益費含む) | 保証金 | 入居可能日 | 検討リスト | 詳細 |
|---|---|---|---|---|---|---|
| 3 | 30.20坪 | 498,300円/月(16,500円/坪) | 362万円 | 即 |
…新着物件
ロリエ四谷ビルのアクセス
ロリエ四谷ビルの物件情報
ロリエ四谷ビル(新宿区四谷)は四谷三丁目駅(3番出口)から徒歩3分の賃貸オフィスです。ロリエ四谷ビルは四谷三丁目駅(3番出口)の他に曙橋駅(A1番出口)徒歩8分、四ツ谷駅(2番出口)徒歩9分で利用も可能です。

