6階は現在募集がありません
2フロア募集区画あり

FORECAST四谷 6階

前の写真 次の写真

物件概要

物件番号

208-00266-40

物件名

FORECAST四谷

所在地

面積

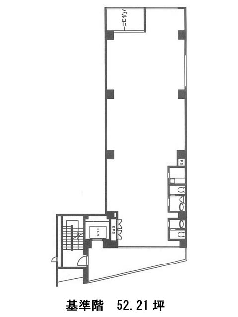
52.21坪

賃料(共益費含)


入居日

募集終了

保証金

礼金

更新料

償却費

竣工

2009年1月

構造

S造

規模

地上11階

トイレ

男女別

空調

個別空調

エレベーター

セキュリティ

駐車場

耐震

新耐震基準

基準階天井高

2550mm

空室延床面積

104.43坪

最寄駅

情報更新日

2026/03/12

FORECAST四谷のテナント募集中区画

階数 面積 賃料(共益費含む) 保証金 入居可能日 検討リスト 詳細
4 52.21坪 応相談(応相談) 応相談 2026年5月上旬
10 52.22坪 応相談(応相談) 応相談
…新着物件

FORECAST四谷のアクセス

FORECAST四谷の物件情報

FORECAST四谷(新宿区四谷)は四谷三丁目駅(3番出口)から徒歩5分の賃貸オフィスです。
新宿通り沿いに立地するスタイリッシュなオフィスビル。最寄り駅からは直進するだけというシンプルなルートでアクセスもスムーズ。ガラス張りのファサードが街並みに映えるシャープな印象の建物です。
基準階は約52坪、ほぼ長方形の無柱空間で、オフィスレイアウトの自由度が高い点も魅力。1フロア1テナント仕様のため、トイレや給湯などの水回りも室内に集約されており、専有性を重視する企業様にもフィットします。
さらに、室内奥には小ぶりながらバルコニーも設置されており、ちょっとした気分転換やリフレッシュにも役立ちそうです。
周辺はビジネス需要の高いエリアならではの利便性が整っており、コンビニや飲食店も多数。ランチや就業後の外出にも困りません。
FORECAST四谷は四谷三丁目駅(3番出口)の他に四ツ谷駅(2番出口)徒歩7分、曙橋駅(A1番出口)徒歩9分で利用も可能です。

近隣のエリア・駅から探す