FORECAST四谷 10階
物件概要
FORECAST四谷のテナント募集中区画
| 階数 | 面積 | 賃料(共益費含む) | 保証金 | 入居可能日 | 検討リスト | 詳細 |
|---|---|---|---|---|---|---|
| 4 | 52.21坪 | 応相談(応相談) | 応相談 | 2026年5月上旬 | ||
| 10 | 52.22坪 | 応相談(応相談) | 応相談 | 即 |
…新着物件
FORECAST四谷のアクセス
FORECAST四谷の物件情報
FORECAST四谷(新宿区四谷)は四谷三丁目駅(3番出口)から徒歩5分の賃貸オフィスです。新宿通り沿いに立地するスタイリッシュなオフィスビル。最寄り駅からは直進するだけというシンプルなルートでアクセスもスムーズ。ガラス張りのファサードが街並みに映えるシャープな印象の建物です。
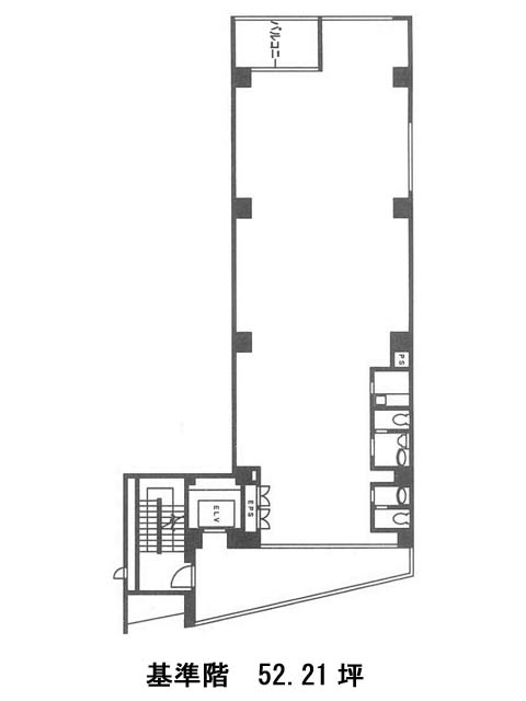
基準階は約52坪、ほぼ長方形の無柱空間で、オフィスレイアウトの自由度が高い点も魅力。1フロア1テナント仕様のため、トイレや給湯などの水回りも室内に集約されており、専有性を重視する企業様にもフィットします。
さらに、室内奥には小ぶりながらバルコニーも設置されており、ちょっとした気分転換やリフレッシュにも役立ちそうです。
周辺はビジネス需要の高いエリアならではの利便性が整っており、コンビニや飲食店も多数。ランチや就業後の外出にも困りません。FORECAST四谷は四谷三丁目駅(3番出口)の他に四ツ谷駅(2番出口)徒歩7分、曙橋駅(A1番出口)徒歩9分で利用も可能です。

