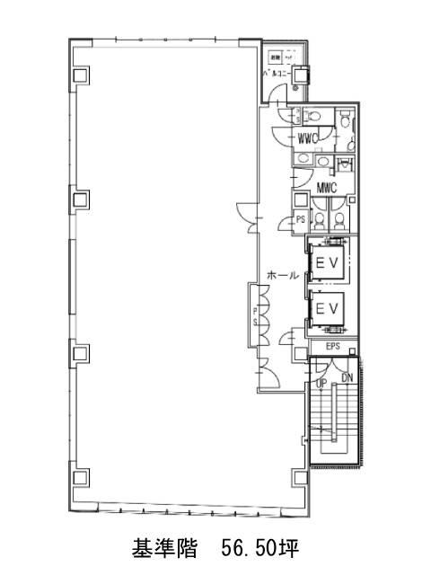
(仮称)新宿区四谷1丁目計画 3階
物件概要
(仮称)新宿区四谷1丁目計画のテナント募集中区画
| 階数 | 面積 | 賃料(共益費含む) | 保証金 | 入居可能日 | 検討リスト | 詳細 |
|---|---|---|---|---|---|---|
| 3 | 56.50坪 | 応相談(応相談) | 応相談 | 2026年10月 | ||
| 4 | 56.50坪 | 応相談(応相談) | 応相談 | 2026年10月 | ||
| 5 | 38.06坪 | 応相談(応相談) | 応相談 | 2026年10月 |
…新着物件
アクセス
(仮称)新宿区四谷1丁目計画の物件情報
(仮称)新宿区四谷1丁目計画(新宿区四谷)は四ツ谷駅(四ッ谷口)から徒歩2分の賃貸オフィスです。(仮称)新宿区四谷1丁目計画は四ツ谷駅(四ッ谷口)の他に麹町駅(5番出口)徒歩10分、四谷三丁目駅(3番出口)徒歩11分で利用も可能です。

