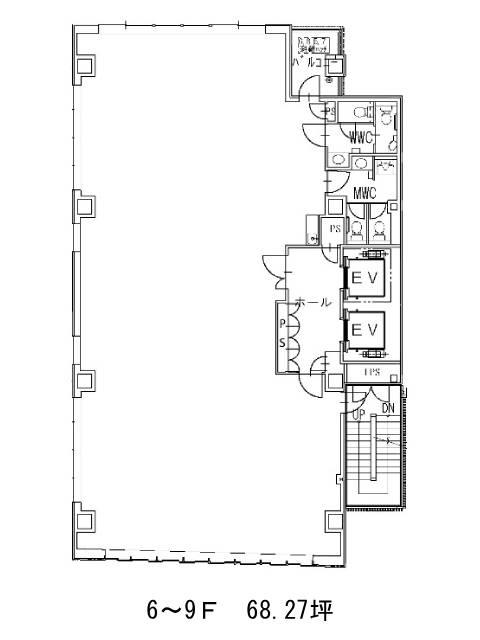
(仮称)新宿区四谷1丁目計画 7階
物件概要
(仮称)新宿区四谷1丁目計画のテナント募集中区画
…新着物件
(仮称)新宿区四谷1丁目計画のアクセス
(仮称)新宿区四谷1丁目計画の物件情報
(仮称)新宿区四谷1丁目計画(新宿区四谷)は四ツ谷駅(四ッ谷口)から徒歩2分の賃貸オフィスです。(仮称)新宿区四谷1丁目計画は四ツ谷駅(四ッ谷口)の他に麹町駅(5番出口)徒歩10分、四谷三丁目駅(3番出口)徒歩11分で利用も可能です。

