第2河上ビル 8階
物件概要
物件番号
208-00073-32物件名
第2河上ビル所在地
- 東京都新宿区四谷2-8
- アクセスマップ
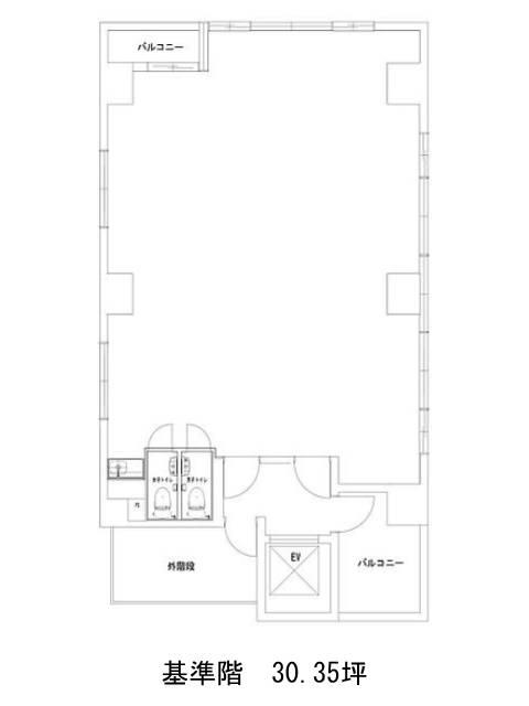
面積
30.35坪賃料(共益費含)
月額500,500円(16,491円/坪)
入居日
即保証金
2,275,036円礼金
1ケ月更新料
新1ケ月償却費
なし竣工
1984年5月構造
SRC規模
地上9階トイレ
男女別空調
個別空調エレベーター
有セキュリティ
駐車場
無耐震
新耐震基準基準階天井高
空室延床面積
30.35坪情報更新日
2025/12/02第2河上ビルのテナント募集中区画
| 階数 | 面積 | 賃料(共益費含む) | 保証金 | 入居可能日 | 検討リスト | 詳細 |
|---|---|---|---|---|---|---|
| 8 | 30.35坪 | 500,500円/月(16,491円/坪) | 227万円 | 即 |
…新着物件
第2河上ビルのアクセス
第2河上ビルの物件情報
第2河上ビル(新宿区四谷)は四ツ谷駅(2番出口)から徒歩5分の賃貸オフィスです。第2河上ビルは四ツ谷駅(2番出口)の他に四谷三丁目駅(3番出口)徒歩7分、曙橋駅(A4番出口)徒歩11分で利用も可能です。

