3階は現在募集がありません
1フロア募集区画あり

市谷東ビル 3階

前の写真 次の写真

物件概要

物件番号

218-00016-30

物件名

市谷東ビル

所在地

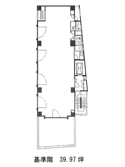
面積

39.97坪

賃料(共益費含)


入居日

募集終了

保証金

礼金

更新料

償却費

竣工

1992年3月

構造

RC

規模

地上7階/地下1階

トイレ

男女別

空調

個別空調

エレベーター

セキュリティ

駐車場

耐震

新耐震基準

基準階天井高

空室延床面積

39.97坪

最寄駅

情報更新日

2026/04/06

市谷東ビルのテナント募集中区画

階数 面積 賃料(共益費含む) 保証金 入居可能日 検討リスト 詳細
4 39.97坪 637,521円/月(15,950円/坪) 405万円
…新着物件

市谷東ビルのアクセス

市谷東ビルの物件情報

市谷東ビル(新宿区市谷田町)は市ヶ谷駅(5番出口)から徒歩1分の賃貸オフィスです。
外堀通りから少し入った落ち着いた通りに位置しています。地上7階建て、外観は白系の明るいタイル張りです。奥行きのある室内には窓が多くありますので、明るく開放的な雰囲気です。上層階からは緑の多い堀の景色を見下ろすことができます。建物内にはエレベーター、個別空調、OAフロア、各フロアに設置されたトイレも含め、水回りも綺麗に手入れされています。また、新耐震基準をクリアしていますので、構造面も安心です。交通アクセスの良さに加え、通り沿いはにコンビニ、薬局、飲食店が営業していますので、周辺環境にも恵まれた立地です。
市谷東ビルは市ヶ谷駅(5番出口)の他に牛込神楽坂駅(A1番出口)徒歩12分、飯田橋駅(B3番出口)徒歩12分で利用も可能です。

近隣のエリア・駅から探す