市谷東ビル 4階
物件概要
物件番号
218-00016-40物件名
市谷東ビル所在地
- 東京都新宿区市谷田町2-1-3
- アクセスマップ
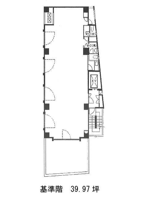
面積
39.97坪賃料(共益費含)
月額637,521円(15,950円/坪)
入居日
即保証金
4,056,955円礼金
なし更新料
新1ケ月償却費
1ケ月竣工
1992年3月構造
RC規模
地上7階/地下1階トイレ
男女別空調
個別空調エレベーター
有セキュリティ
駐車場
無耐震
新耐震基準基準階天井高
空室延床面積
39.97坪情報更新日
2026/03/03市谷東ビルのテナント募集中区画
| 階数 | 面積 | 賃料(共益費含む) | 保証金 | 入居可能日 | 検討リスト | 詳細 |
|---|---|---|---|---|---|---|
| 4 | 39.97坪 | 637,521円/月(15,950円/坪) | 405万円 | 即 |
…新着物件
市谷東ビルのアクセス
市谷東ビルの物件情報
市谷東ビル(新宿区市谷田町)は市ヶ谷駅(5番出口)から徒歩1分の賃貸オフィスです。外堀通りから少し入った落ち着いた通りに位置しています。地上7階建て、外観は白系の明るいタイル張りです。奥行きのある室内には窓が多くありますので、明るく開放的な雰囲気です。上層階からは緑の多い堀の景色を見下ろすことができます。建物内にはエレベーター、個別空調、OAフロア、各フロアに設置されたトイレも含め、水回りも綺麗に手入れされています。また、新耐震基準をクリアしていますので、構造面も安心です。交通アクセスの良さに加え、通り沿いはにコンビニ、薬局、飲食店が営業していますので、周辺環境にも恵まれた立地です。市谷東ビルは市ヶ谷駅(5番出口)の他に牛込神楽坂駅(A1番出口)徒歩12分、飯田橋駅(B3番出口)徒歩12分で利用も可能です。

