宮尾ビル/ライオンズマンション市谷薬王寺 1階
物件概要
物件番号
221-00002-10物件名
宮尾ビル/ライオンズマンション市谷薬王寺所在地
- 東京都新宿区市谷薬王寺町52
- アクセスマップ
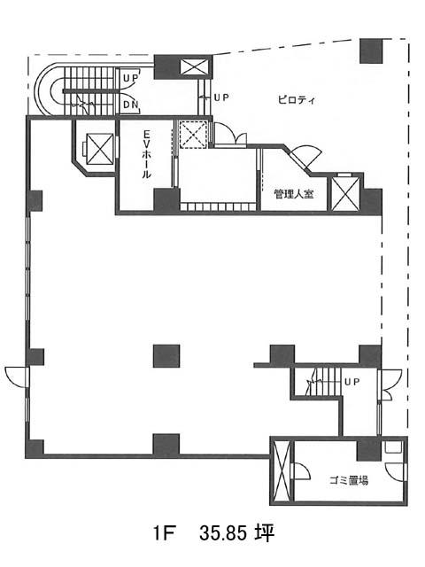
面積
35.85坪賃料(共益費含)
月額670,395円(18,700円/坪)
入居日
2026年3月中旬保証金
3,656,700円礼金
なし更新料
なし償却費
1ケ月竣工
1985年12月構造
規模
地上13階/地下1階トイレ
男女共用空調
エレベーター
有セキュリティ
駐車場
有耐震
新耐震基準基準階天井高
空室延床面積
35.85坪情報更新日
2026/02/20宮尾ビル/ライオンズマンション市谷薬王寺のテナント募集中区画
| 階数 | 面積 | 賃料(共益費含む) | 保証金 | 入居可能日 | 検討リスト | 詳細 |
|---|---|---|---|---|---|---|
| 1 | 35.85坪 | 670,395円/月(18,700円/坪) | 365万円 | 2026年3月中旬 |
…新着物件
宮尾ビル/ライオンズマンション市谷薬王寺のアクセス
宮尾ビル/ライオンズマンション市谷薬王寺の物件情報
宮尾ビル/ライオンズマンション市谷薬王寺(新宿区市谷薬王寺町)は牛込柳町駅(東口)から徒歩6分の賃貸オフィスです。宮尾ビル/ライオンズマンション市谷薬王寺は牛込柳町駅(東口)の他に曙橋駅(A3番出口)徒歩7分、若松河田駅(若松口)徒歩11分で利用も可能です。

