オスカカテリーナのテナント募集中区画
| 階数 | 面積 | 賃料(共益費含む) | 保証金 | 入居可能日 | 検討リスト | 詳細 |
|---|---|---|---|---|---|---|
| 2 | 85.18坪 | 1,618,398円/月(19,000円/坪) | 606万円 | 即 | ||
| 3 | 33.95坪 | 619,000円/月(18,233円/坪) | 144万円 | 即 | ||
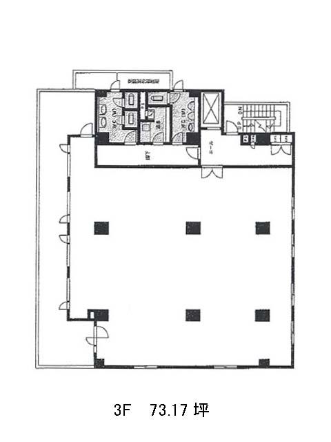
| 5 | 65.73坪 | 1,870,000円/月(28,450円/坪) | 170万円 | 即 |
…新着物件
オスカカテリーナのアクセス
オスカカテリーナの物件情報
オスカカテリーナ(新宿区新宿)は新宿御苑前駅(2番出口)から徒歩3分の賃貸オフィスです。最寄り駅からのアクセスが良好な本物件は、周辺に飲食店やコンビニが点在し、日々の利便性に優れた立地にあります。外観はシンプルなタイル張りで、落ち着いた印象。貸室は小規模から中規模まで複数のサイズが用意されており、ニーズに合わせた選択が可能です。なお、区画によって設備条件が異なるため、詳細は都度ご確認ください。セキュリティは機械警備を採用しています。オスカカテリーナは新宿御苑前駅(2番出口)の他に新宿三丁目駅(C5番出口)徒歩9分、四谷三丁目駅(2番出口)徒歩10分で利用も可能です。

