2階は現在募集がありません
1フロア募集区画あり

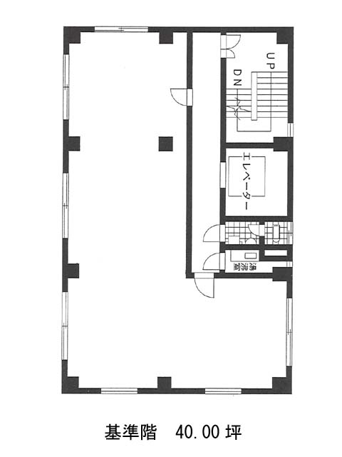
宝ビル 2階

前の写真 次の写真

物件概要

物件番号

235-00003-20

物件名

宝ビル

所在地

面積

40.00坪

賃料(共益費含)


入居日

募集終了

保証金

礼金

更新料

償却費

竣工

1974年3月

構造

RC

規模

地上5階

トイレ

男女共用

空調

エレベーター

セキュリティ

駐車場

耐震

旧耐震基準

基準階天井高

空室延床面積

40.00坪

最寄駅

情報更新日

2026/03/13

宝ビルのテナント募集中区画

階数 面積 賃料(共益費含む) 保証金 入居可能日 検討リスト 詳細
3 40.00坪 429,000円/月(10,725円/坪) 132万円
…新着物件

宝ビルのアクセス

宝ビルの物件情報

宝ビル(新宿区水道町)は江戸川橋駅(4番出口)から徒歩6分の賃貸オフィスです。
1974年竣工、目白通りから少し入った落ち着いた通り沿いに立地しています。外観は柔らかい色味のブラウンで、側面がセットバックする形になっています。室内はきれいなL字型ですので、効率的なレイアウトが組めそうです。また、窓が多いため、採光や風通りも良いでしょう。地上5階建てと低層ながら、エレベーターが設置されていますので、昇降が楽に行えます。その他駐車場、個別空調等を備えています。周辺には住宅が多く、スーパーや小規模な飲食店などが複数営業していますので、昼食時やちょっとしたお買い物には困らないでしょう。
宝ビルは江戸川橋駅(4番出口)の他に神楽坂駅(1番出口)徒歩9分、牛込神楽坂駅(A3番出口)徒歩13分で利用も可能です。

近隣のエリア・駅から探す