宝ビル 3階
物件概要
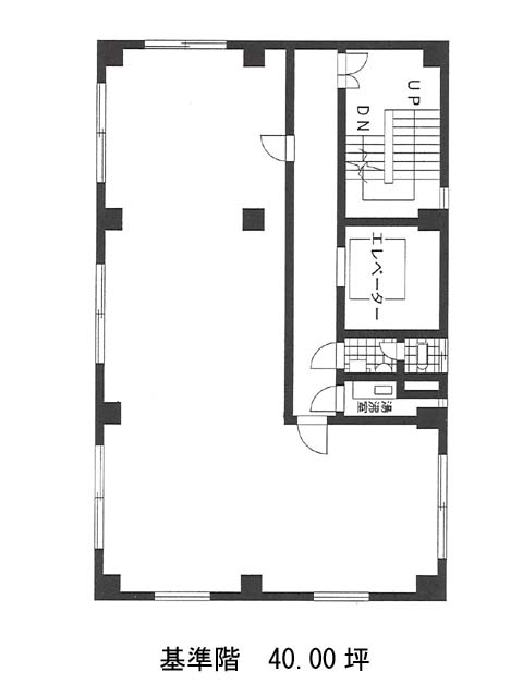
宝ビルのテナント募集中区画
| 階数 | 面積 | 賃料(共益費含む) | 保証金 | 入居可能日 | 検討リスト | 詳細 |
|---|---|---|---|---|---|---|
| 3 | 40.00坪 | 429,000円/月(10,725円/坪) | 132万円 | 即 |
…新着物件
宝ビルのアクセス
宝ビルの物件情報
宝ビル(新宿区水道町)は江戸川橋駅(4番出口)から徒歩6分の賃貸オフィスです。1974年竣工、目白通りから少し入った落ち着いた通り沿いに立地しています。外観は柔らかい色味のブラウンで、側面がセットバックする形になっています。室内はきれいなL字型ですので、効率的なレイアウトが組めそうです。また、窓が多いため、採光や風通りも良いでしょう。地上5階建てと低層ながら、エレベーターが設置されていますので、昇降が楽に行えます。その他駐車場、個別空調等を備えています。周辺には住宅が多く、スーパーや小規模な飲食店などが複数営業していますので、昼食時やちょっとしたお買い物には困らないでしょう。宝ビルは江戸川橋駅(4番出口)の他に神楽坂駅(1番出口)徒歩9分、牛込神楽坂駅(A3番出口)徒歩13分で利用も可能です。

