3階は現在募集がありません
1フロア募集区画あり

渡辺西新宿ビル 3階

前の写真 次の写真

物件概要

物件番号

237-00201-40

物件名

渡辺西新宿ビル

所在地

面積

58.04坪

賃料(共益費含)


入居日

募集終了

保証金

礼金

更新料

償却費

竣工

1990年12月

構造

RC

規模

地上9階

トイレ

男女別

空調

個別空調

エレベーター

セキュリティ

駐車場

耐震

新耐震基準

基準階天井高

2600mm

空室延床面積

57.66坪

最寄駅

情報更新日

2026/02/26

渡辺西新宿ビルのテナント募集中区画

階数 面積 賃料(共益費含む) 保証金 入居可能日 検討リスト 詳細
5 57.66坪 応相談(応相談) 応相談
…新着物件

渡辺西新宿ビルのアクセス

渡辺西新宿ビルの物件情報

渡辺西新宿ビル(新宿区西新宿)は西新宿五丁目駅(A1番出口)から徒歩2分の賃貸オフィスです。
外観は鏡面ガラス張りでスタイリッシュな雰囲気が漂います。
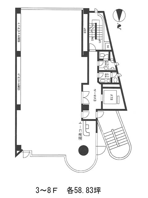
基準階は約58坪、長方形の無柱空間で、レイアウトの自由度が高く、使い勝手の良いフロア設計です。男女別トイレはエレベーターホール側にコンパクトにまとまっており、執務空間とはしっかり切り分けられています。
周辺にはコンビニや飲食店も点在しており、ランチやちょっとした買い物にも困りません。駅からのアクセスや周辺環境も含めて、日常のビジネスシーンをスムーズに支える立地です。
渡辺西新宿ビルは西新宿五丁目駅(A1番出口)の他に西新宿駅(E4番出口)徒歩8分、都庁前駅(A5番出口)徒歩8分で利用も可能です。

近隣のエリア・駅から探す