渡辺西新宿ビル 5階
物件概要
渡辺西新宿ビルのテナント募集中区画
| 階数 | 面積 | 賃料(共益費含む) | 保証金 | 入居可能日 | 検討リスト | 詳細 |
|---|---|---|---|---|---|---|
| 5 | 57.66坪 | 応相談(応相談) | 応相談 | 即 |
…新着物件
渡辺西新宿ビルのアクセス
渡辺西新宿ビルの物件情報
渡辺西新宿ビル(新宿区西新宿)は西新宿五丁目駅(A1番出口)から徒歩2分の賃貸オフィスです。外観は鏡面ガラス張りでスタイリッシュな雰囲気が漂います。
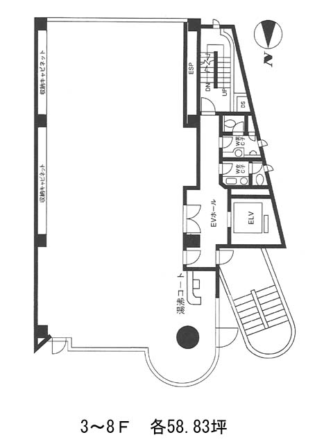
基準階は約58坪、長方形の無柱空間で、レイアウトの自由度が高く、使い勝手の良いフロア設計です。男女別トイレはエレベーターホール側にコンパクトにまとまっており、執務空間とはしっかり切り分けられています。
周辺にはコンビニや飲食店も点在しており、ランチやちょっとした買い物にも困りません。駅からのアクセスや周辺環境も含めて、日常のビジネスシーンをスムーズに支える立地です。渡辺西新宿ビルは西新宿五丁目駅(A1番出口)の他に西新宿駅(E4番出口)徒歩8分、都庁前駅(A5番出口)徒歩8分で利用も可能です。

