10階は現在募集がありません
1フロア募集区画あり

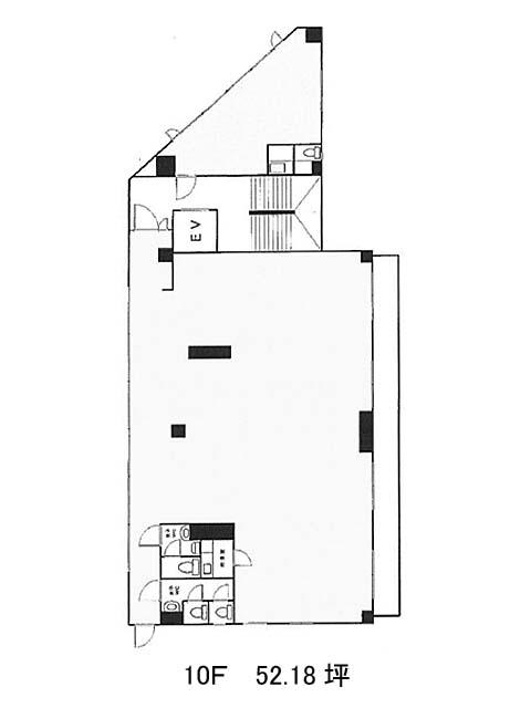
第1ともえビル 10階

前の写真 次の写真

物件概要

物件番号

237-00434-63

物件名

第1ともえビル

所在地

面積

52.18坪

賃料(共益費含)


入居日

募集終了

保証金

礼金

更新料

償却費

竣工

1973年5月

構造

SRC

規模

地上10階/地下1階

トイレ

男女別

空調

個別空調

エレベーター

セキュリティ

駐車場

耐震

旧耐震基準

基準階天井高

空室延床面積

60.56坪

最寄駅

情報更新日

2025/08/04

第1ともえビルのテナント募集中区画

階数 面積 賃料(共益費含む) 保証金 入居可能日 検討リスト 詳細
2 60.56坪 671,000円/月(11,080円/坪) 350万円
…新着物件

アクセス

第1ともえビルの物件情報

第1ともえビル(新宿区西新宿)は西新宿五丁目駅(A1番出口)から徒歩5分の賃貸オフィスです。
1973年5月の竣工で、地上10階建てのSRC構造。外観は落ち着いた茶色を基調とした安心感のある雰囲気の建物です。基準階フロアは約60坪、貸室内の窓は大きく、明るいオフィスとなるでしょう。個別空調を完備、男女別のトイレ設置となっているので、女性にも安心してご利用いただけます。1階には飲食店が複数営業しており、徒歩圏内にはコンビニエンスストアや郵便局があるので、利便性も高いでしょう。
第1ともえビルは西新宿五丁目駅(A1番出口)の他に都庁前駅(E4番出口)徒歩7分、西新宿駅(E4番出口)徒歩7分で利用も可能です。

近隣のエリア・駅から探す