第3都ビル 7階
物件概要
物件番号
255-00008-31物件名
第3都ビル所在地
- 東京都新宿区津久戸町4-6
- アクセスマップ
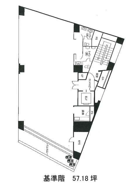
面積
57.18坪賃料(共益費含)
月額1,195,062円(20,900円/坪)
入居日
即保証金
5,489,280円礼金
なし更新料
新1ケ月償却費
1ケ月竣工
1987年9月構造
SRC規模
地上 9階/地下1階トイレ
男女別空調
個別空調エレベーター
有セキュリティ
有駐車場
無耐震
新耐震基準基準階天井高
空室延床面積
106.41坪情報更新日
2026/02/18第3都ビルのテナント募集中区画
| 階数 | 面積 | 賃料(共益費含む) | 保証金 | 入居可能日 | 検討リスト | 詳細 |
|---|---|---|---|---|---|---|
| 7 | 57.18坪 | 1,195,062円/月(20,900円/坪) | 548万円 | 即 | ||
| 9 | 49.23坪 | 1,028,907円/月(20,900円/坪) | 472万円 | 即 |
…新着物件
第3都ビルのアクセス
第3都ビルの物件情報
第3都ビル(新宿区津久戸町)は飯田橋駅(C1番出口)から徒歩4分の賃貸オフィスです。大久保通り沿いの角地にある、地上9階・地下1階のビルです。建物に大きくビル名が入っているので、目につきやすいです。間取りは50坪弱から83坪までと複数あります。少し変形した間取りですが、無柱空間とフリーアクセスの床でレイアウトしやすくなっています。給湯室とトイレは男女別で室内に設置されています。ビル2階はシュミレーションゴルフの施設になっています。コインパーキングがあるので、車での来客者の対応もしやすいです。第3都ビルは飯田橋駅(C1番出口)の他に牛込神楽坂駅(A3番出口)徒歩5分、神楽坂駅(1番出口)徒歩7分で利用も可能です。

