5階は現在募集がありません
1フロア募集区画あり

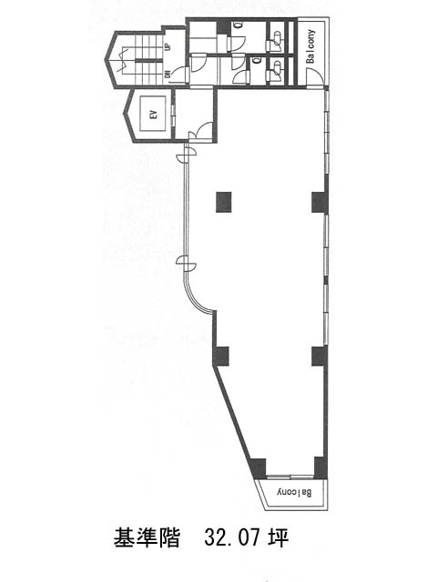
ガーデンクロス新宿御苑 5階

前の写真 次の写真

物件概要

物件番号

259-00005-40

物件名

ガーデンクロス新宿御苑

所在地

面積

32.07坪

賃料(共益費含)


入居日

募集終了

保証金

礼金

更新料

償却費

竣工

1983年4月

構造

SRC

規模

地上10階/地下1階

トイレ

男女別

空調

個別空調

エレベーター

セキュリティ

駐車場

耐震

新耐震基準

基準階天井高

2750mm

空室延床面積

32.05坪

最寄駅

情報更新日

2026/02/18

ガーデンクロス新宿御苑のテナント募集中区画

階数 面積 賃料(共益費含む) 保証金 入居可能日 検討リスト 詳細
3 32.05坪 846,120円/月(26,400円/坪) 461万円 2026年4月上旬
…新着物件

ガーデンクロス新宿御苑のアクセス

ガーデンクロス新宿御苑の物件情報

ガーデンクロス新宿御苑(新宿区内藤町)は四谷三丁目駅(1番出口)から徒歩6分の賃貸オフィスです。
ガーデンクロス新宿御苑は四谷三丁目駅(1番出口)の他に新宿御苑前駅(2番出口)徒歩6分、国立競技場駅(A3番出口)徒歩12分で利用も可能です。

近隣のエリア・駅から探す