5階は現在募集がありません
3フロア募集区画あり
サウスタワービル 5階
物件概要
物件番号
269-00004-70物件名
サウスタワービル所在地
- 東京都新宿区富久町13-15
- アクセスマップ
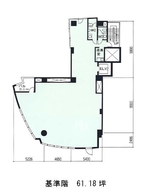
面積
61.18坪賃料(共益費含)
−入居日
募集終了保証金
−礼金
−更新料
−償却費
−竣工
1995年9月構造
SRC規模
地上10階/地下2階トイレ
男女別空調
個別空調エレベーター
有セキュリティ
有駐車場
無耐震
新耐震基準基準階天井高
2600mm空室延床面積
196.86坪情報更新日
2026/01/21サウスタワービルのテナント募集中区画
| 階数 | 面積 | 賃料(共益費含む) | 保証金 | 入居可能日 | 検討リスト | 詳細 |
|---|---|---|---|---|---|---|
| 1-2F | 74.50坪 | 1,639,000円/月(22,000円/坪) | 894万円 | 即 | ||
| 3 | 61.18坪 | 1,009,470円/月(16,500円/坪) | 642万円 | 相談 | ||
| 6 | 61.18坪 | 1,009,470円/月(16,500円/坪) | 642万円 | 即 |
…新着物件
サウスタワービルのアクセス
サウスタワービルの物件情報
サウスタワービル(新宿区富久町)は新宿御苑前駅(2番出口)から徒歩8分の賃貸オフィスです。富久町西交差点に面した角地で、開放感と採光性に優れています。ガラス張りの曲面と個性的なデザインが目を引き、エリアの中でも一際印象に残る外観です。
基準階は60坪前後のフロア構成。やや変形の間取りは、レイアウトに遊び心を加えたり、ゾーニングを工夫する使い方も可能です。水回りは室内端に集約されており、スペースを有効活用しやすい設計です。
OAフロア・個別空調・機械警備も完備。最寄り駅からは少し距離がありますが、落ち着いた環境を好む企業にとっては検討しがいのある一棟です。サウスタワービルは新宿御苑前駅(2番出口)の他に曙橋駅(A1番出口)徒歩10分、新宿三丁目駅(C7番出口)徒歩11分で利用も可能です。

