3階は現在募集がありません
ZeST一番町 3階
物件概要
ZeST一番町のテナント募集中区画
現在、空室がございません。
ZeST一番町のアクセス
ZeST一番町の物件情報
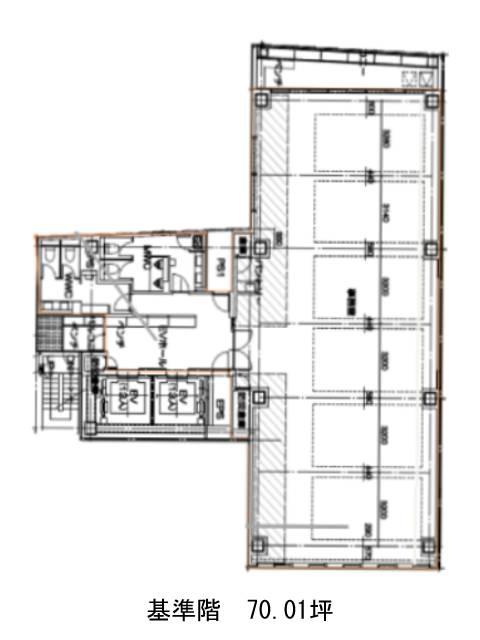
ZeST一番町(千代田区一番町)は麹町駅(3番出口)から徒歩4分の賃貸オフィスです。複数駅へのアクセスが可能でございます。2022年竣工と新しく、新耐震基準を満たした物件なので、安心してご入居いただけます。基準となる床面積は約70坪で、見通しの良いレイアウトを組みやすいフロアです。フリーアクセス、個別空調完備、男女別トイレと給湯室の水回りは全て室外に設置されており、執務空間との区分けがしっかりしています。付近にも飲食店やコンビニが多く、ランチをするのに困ることはなさそうです。ZeST一番町は麹町駅(3番出口)の他に半蔵門駅(出口1)徒歩4分、市ヶ谷駅(3番出口)徒歩10分で利用も可能です。

