ZeST一番町 9階
物件概要
物件番号
377-00102-8物件名
ZeST一番町所在地
- 東京都千代田区一番町10-6
- アクセスマップ
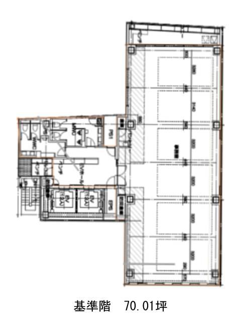
面積
70.01坪賃料(共益費含)
月額1,617,231円(23,100円/坪)
入居日
即保証金
8,821,260円礼金
なし更新料
なし償却費
なし竣工
2022年4月構造
RC規模
地上9階トイレ
男女別空調
個別空調エレベーター
有セキュリティ
有駐車場
無耐震
新耐震基準基準階天井高
3245mm空室延床面積
70.01坪情報更新日
2025/12/01ZeST一番町のテナント募集中区画
| 階数 | 面積 | 賃料(共益費含む) | 保証金 | 入居可能日 | 検討リスト | 詳細 |
|---|---|---|---|---|---|---|
| 9 | 70.01坪 | 1,617,231円/月(23,100円/坪) | 882万円 | 即 |
…新着物件
アクセス
ZeST一番町の物件情報
ZeST一番町(千代田区一番町)は麹町駅(3番出口)から徒歩4分の賃貸オフィスです。複数駅へのアクセスが可能でございます。2022年竣工と新しく、新耐震基準を満たした物件なので、安心してご入居いただけます。基準となる床面積は約70坪で、見通しの良いレイアウトを組みやすいフロアです。フリーアクセス、個別空調完備、男女別トイレと給湯室の水回りは全て室外に設置されており、執務空間との区分けがしっかりしています。付近にも飲食店やコンビニが多く、ランチをするのに困ることはなさそうです。ZeST一番町は麹町駅(3番出口)の他に半蔵門駅(出口1)徒歩4分、市ヶ谷駅(3番出口)徒歩10分で利用も可能です。

