相模屋第2ビル 2階
物件概要
物件番号
377-00028-101物件名
相模屋第2ビル所在地
- 東京都千代田区一番町10-14
- アクセスマップ
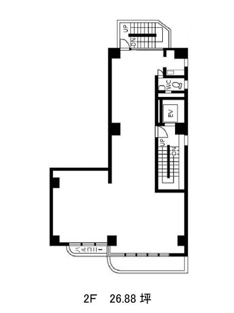
面積
26.88坪賃料(共益費含)
月額384,384円(14,300円/坪)
入居日
即保証金
3,494,400円礼金
なし更新料
なし償却費
1ケ月竣工
1980年3月構造
SRC規模
地上7階トイレ
男女共用空調
個別空調エレベーター
有セキュリティ
有駐車場
有耐震
旧耐震基準基準階天井高
2400mm空室延床面積
52.76坪情報更新日
2025/12/05相模屋第2ビルのテナント募集中区画
| 階数 | 面積 | 賃料(共益費含む) | 保証金 | 入居可能日 | 検討リスト | 詳細 |
|---|---|---|---|---|---|---|
| 2 | 26.88坪 | 384,384円/月(14,300円/坪) | 349万円 | 即 | ||
| 5 | 25.88坪 | 370,084円/月(14,300円/坪) | 336万円 | 即 |
…新着物件
アクセス
相模屋第2ビルの物件情報
相模屋第2ビル(千代田区一番町)は半蔵門駅(出口)から徒歩4分の賃貸オフィスです。地上7階建て、番町中央通りの一本隣の通りにあります。レンガ調の外観で、丸みのあるバルコニーが特徴的です。室内はL字型に近い形で、レイアウトの支障になる柱はありません。空調は個別空調で、床はお手入れのしやすいタイルカーペット仕様です。エレベーターは1基設置され、駐車場もございますので、ご利用になれば社用車等も使いやすいでしょう。周辺は落ち着いた雰囲気で、近くに郵便局、薬局、コンビニ、区役所等がありますので、事務作業やお買い物に便利です。相模屋第2ビルは半蔵門駅(出口)の他に麹町駅(3番出口)徒歩4分、市ヶ谷駅(3番出口)徒歩11分で利用も可能です。

