アデックス一番町のテナント募集中区画
| 階数 | 面積 | 賃料(共益費含む) | 保証金 | 入居可能日 | 検討リスト | 詳細 |
|---|---|---|---|---|---|---|
| 2 | 44.96坪 | 803,000円/月(17,860円/坪) | 511万円 | 即 |
…新着物件
アクセス
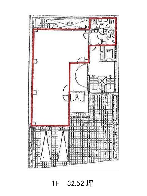
アデックス一番町の物件情報
アデックス一番町(千代田区一番町)は半蔵門駅(5番出口)から徒歩5分の賃貸オフィスです。落ち着いた住宅街の一角に位置する本物件は、白のパネル張りがシンプルで清潔感のある外観。派手さはないものの、丁寧に手入れされたエントランスからは、管理状態の良さが伝わってきます。
貸室はフロアによってサイズが異なるため、必要な広さや用途に応じた柔軟な選択が可能。設備面では、個別空調や機械警備をはじめ、敷地内駐車場も完備されており、働く人にとっての快適さにも配慮されています。周囲には学校や住宅が点在し、ビジネスの場でありながら穏やかな空気が流れるエリア。バタバタしすぎない環境で、腰を据えて働きたい企業におすすめの物件です。アデックス一番町は半蔵門駅(5番出口)の他に市ヶ谷駅(A3番出口)徒歩6分、麹町駅(6番出口)徒歩7分で利用も可能です。

