5階は現在募集がありません
3フロア募集区画あり

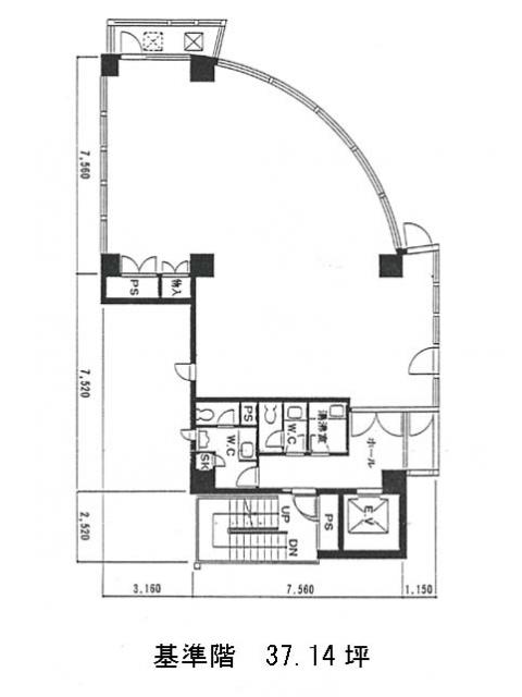
石川興産ビル 5階

前の写真 次の写真

物件概要

物件番号

381-00146-50

物件名

石川興産ビル

所在地

面積

37.14坪

賃料(共益費含)


入居日

募集終了

保証金

礼金

更新料

償却費

竣工

1992年3月

構造

SRC

規模

地上10階

トイレ

男女別

空調

個別空調

エレベーター

セキュリティ

駐車場

耐震

新耐震基準

基準階天井高

空室延床面積

120.60坪

最寄駅

情報更新日

2026/02/27

石川興産ビルのテナント募集中区画

階数 面積 賃料(共益費含む) 保証金 入居可能日 検討リスト 詳細
4 40.20坪 862,290円/月(21,450円/坪) 623万円
6 40.20坪 862,290円/月(21,450円/坪) 623万円
8 40.20坪 862,290円/月(21,450円/坪) 623万円
…新着物件

石川興産ビルのアクセス

石川興産ビルの物件情報

石川興産ビル(千代田区外神田)は末広町駅(1番出口)から徒歩1分の賃貸オフィスです。
末広町駅から徒歩1分という好立地にあり、中央通りと蔵前橋通りの交差点の角地にあります。外観は通りに面してアーチを描く大きな窓が特徴的で初めて来る方にもとても分かりやすく、室内への採光も期待できます。室内は変わった形をしていますが床はフリーアクセスのためレイアウトにはそこまで困らないでしょう。隣のビルにはコンビニがあります。周辺にはファーストフードやカフェ、蕎麦屋、イタリアン、中華など飲食店が多く、ランチのバリエーションも楽しめるでしょう。
石川興産ビルは末広町駅(1番出口)の他に上野広小路駅(A1番出口)徒歩7分、湯島駅(6番出口)徒歩7分で利用も可能です。

近隣のエリア・駅から探す