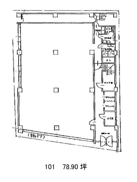
1階 101は現在募集がありません
偕楽ビル(外神田) 1階 101
物件概要
偕楽ビル(外神田)のテナント募集中区画
現在、空室がございません。
アクセス
偕楽ビル(外神田)の物件情報
偕楽ビル(外神田)(千代田区外神田)は末広町駅(4番出口)から徒歩3分の賃貸オフィスです。偕楽ビル(外神田)は末広町駅(4番出口)の他に湯島駅(6番出口)徒歩4分、上野広小路駅(A1番出口)徒歩8分で利用も可能です。

