8階は現在募集がありません
1フロア募集区画あり

VORT秋葉原Ⅵ 8階

前の写真 次の写真

物件概要

物件番号

381-00504-7

物件名

VORT秋葉原Ⅵ

所在地

面積

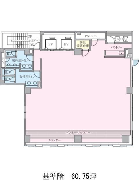
60.75坪

賃料(共益費含)


入居日

募集終了

保証金

礼金

更新料

償却費

竣工

2022年6月

構造

S造

規模

地上11階

トイレ

男女別

空調

個別空調

エレベーター

セキュリティ

駐車場

耐震

新耐震基準

基準階天井高

2500mm

空室延床面積

60.75坪

最寄駅

情報更新日

2026/04/22

VORT秋葉原Ⅵのテナント募集中区画

階数 面積 賃料(共益費含む) 保証金 入居可能日 検討リスト 詳細
5 60.75坪 応相談(応相談) 応相談 2026年7月
…新着物件

VORT秋葉原Ⅵのアクセス

VORT秋葉原Ⅵの物件情報

VORT秋葉原Ⅵ(千代田区外神田)は末広町駅(3番出口)から徒歩4分の賃貸オフィスです。
2022年竣工。新耐震基準に適合した鉄骨造・地上10階建てのオフィスビルです。基準階面積は約60坪で、貸室内は無柱空間の為、レイアウトを組みやすいでしょう。また窓が多いので、貸室内は明るく採光良好です。設備面は、男女別トイレ、個別空調、機械警備導入、エレベーターは2基設置されています。また、駐車場も併設されている為、社用車を使う場合も便利です。徒歩圏内にコンビニや多数の飲食店が点在しているので食事をする際も便利です。
VORT秋葉原Ⅵは末広町駅(3番出口)の他に秋葉原駅(電気街口)徒歩5分、神田駅(6番出口)徒歩9分で利用も可能です。

近隣のエリア・駅から探す