15階 1503は現在募集がありません
3フロア募集区画あり
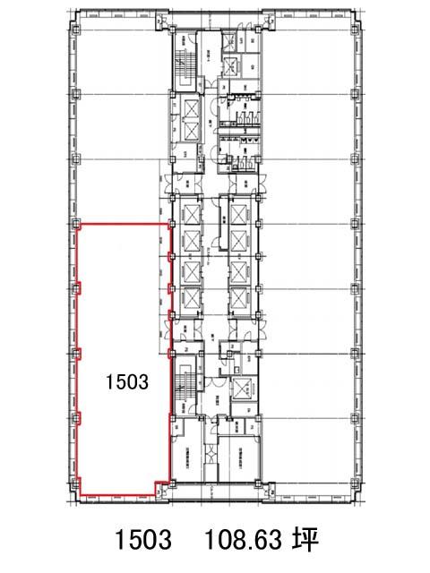
紀尾井町ビル 15階 1503
物件概要
物件番号
384-00021-374物件名
紀尾井町ビル所在地
- 東京都千代田区紀尾井町3-12
- アクセスマップ
面積
108.63坪賃料(共益費含)
−入居日
募集終了保証金
−礼金
−更新料
−償却費
−竣工
1989年12月構造
SRC規模
地上26階/地下4階トイレ
男女別空調
セントラルエレベーター
有セキュリティ
有駐車場
有耐震
新耐震基準基準階天井高
2630~2930mm空室延床面積
164.88坪情報更新日
2026/04/04紀尾井町ビルのテナント募集中区画
| 階数 | 面積 | 賃料(共益費含む) | 保証金 | 入居可能日 | 検討リスト | 詳細 |
|---|---|---|---|---|---|---|
| 5 | 81.98坪 | 応相談(応相談) | 応相談 | 即 | ||
| 6 | 58.80坪 | 応相談(応相談) | 応相談 | 即 | ||
| 8 | 24.10坪 | 応相談(応相談) | 応相談 | 2026年5月上旬 |
…新着物件
紀尾井町ビルのアクセス
紀尾井町ビルの物件情報
紀尾井町ビル(千代田区紀尾井町)は麹町駅(2番出口)から徒歩3分の賃貸オフィスです。1989年施工となっておりますが、外装、内装共に綺麗な状態で、新耐震基準を満たした物件なので、安心してご入居いただけます。貸室内は外光がしっかりと入ってくるので、明るいオフィスとなるでしょう。また各階に0.9坪~1.9坪の倉庫スペースが設けられておりますので、ちょっとした備品を格納するなど、便利です。フリーアクセス、男女別トイレ完備、自走式駐車場を採用しているため、車の利用もしやすい環境です。紀尾井町ビルは麹町駅(2番出口)の他に半蔵門駅(1番出口)徒歩7分、永田町駅(9b番出口)徒歩9分で利用も可能です。

