4階は現在募集がありません
1フロア募集区画あり

ニューライフビル 4階

前の写真 次の写真

物件概要

物件番号

385-00071-40

物件名

ニューライフビル

所在地

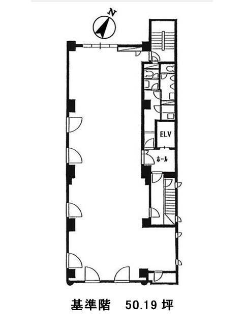
面積

50.19坪

賃料(共益費含)


入居日

募集終了

保証金

礼金

更新料

償却費

竣工

1992年10月

構造

RC

規模

地上7階

トイレ

男女別

空調

個別空調

エレベーター

セキュリティ

駐車場

耐震

新耐震基準

基準階天井高

空室延床面積

24.16坪

最寄駅

情報更新日

2025/11/26

ニューライフビルのテナント募集中区画

階数 面積 賃料(共益費含む) 保証金 入居可能日 検討リスト 詳細
5 24.16坪 531,520円/月(22,000円/坪) 239万円 2026年1月上旬
…新着物件

アクセス

ニューライフビルの物件情報

ニューライフビル(千代田区九段南)は市ヶ谷駅(A3番出口)から徒歩6分の賃貸オフィスです。
1992年竣工、RC造の地上7階建、ベージュのタイル前面には石材を用いたツートンカラーが特徴的の建物です。ブラックの御影石を贅沢に利用した高級感のあるエントランスの奥には、機械式警備、エレベーターが1基完備されています。基準階は約50坪、OAフロア・光ファイバー、個別空調、共用部には給湯室と男女別トイレなど設備面も充実。またバルコニーが設置されている階もあり、休憩スペースとしても使用可能でしょう。1階は店舗事務所としてもご相談可能な物件です。飲食店が豊富な靖国通り沿いから入った二七通り沿いに立地しており、ランチや打ち合わせなどもしやすい便利な環境です。
ニューライフビルは市ヶ谷駅(A3番出口)の他に半蔵門駅(5番出口)徒歩10分、九段下駅(1番出口)徒歩12分で利用も可能です。

近隣のエリア・駅から探す