ニューライフビル 5階 501
物件概要
物件番号
385-00071-63物件名
ニューライフビル所在地
- 東京都千代田区九段南3-3-4
- アクセスマップ
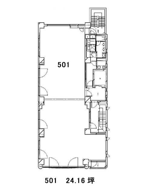
面積
24.16坪賃料(共益費含)
月額531,520円(22,000円/坪)
入居日
2026年1月上旬保証金
2,391,840円礼金
なし更新料
なし償却費
1ケ月竣工
1992年10月構造
RC規模
地上7階トイレ
男女別空調
個別空調エレベーター
有セキュリティ
有駐車場
無耐震
新耐震基準基準階天井高
空室延床面積
24.16坪情報更新日
2025/11/26ニューライフビルのテナント募集中区画
| 階数 | 面積 | 賃料(共益費含む) | 保証金 | 入居可能日 | 検討リスト | 詳細 |
|---|---|---|---|---|---|---|
| 5 | 24.16坪 | 531,520円/月(22,000円/坪) | 239万円 | 2026年1月上旬 |
…新着物件
アクセス
ニューライフビルの物件情報
ニューライフビル(千代田区九段南)は市ヶ谷駅(A3番出口)から徒歩6分の賃貸オフィスです。1992年竣工、RC造の地上7階建、ベージュのタイル前面には石材を用いたツートンカラーが特徴的の建物です。ブラックの御影石を贅沢に利用した高級感のあるエントランスの奥には、機械式警備、エレベーターが1基完備されています。基準階は約50坪、OAフロア・光ファイバー、個別空調、共用部には給湯室と男女別トイレなど設備面も充実。またバルコニーが設置されている階もあり、休憩スペースとしても使用可能でしょう。1階は店舗事務所としてもご相談可能な物件です。飲食店が豊富な靖国通り沿いから入った二七通り沿いに立地しており、ランチや打ち合わせなどもしやすい便利な環境です。ニューライフビルは市ヶ谷駅(A3番出口)の他に半蔵門駅(5番出口)徒歩10分、九段下駅(1番出口)徒歩12分で利用も可能です。

