九段北1丁目ビル 5階
物件概要
物件番号
386-00071-50物件名
九段北1丁目ビル所在地
- 東京都千代田区九段北1-2-1
- アクセスマップ
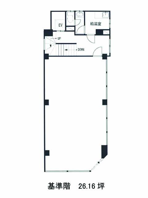
面積
26.16坪賃料(共益費含)
月額480,700円(18,376円/坪)
入居日
2026年2月下旬保証金
2,322,066円礼金
なし更新料
新1ケ月償却費
なし竣工
1965年8月構造
SRC規模
地上8階/地下1階トイレ
男女共用空調
個別空調エレベーター
有セキュリティ
有駐車場
無耐震
旧耐震基準基準階天井高
空室延床面積
26.16坪情報更新日
2025/12/25九段北1丁目ビルのテナント募集中区画
| 階数 | 面積 | 賃料(共益費含む) | 保証金 | 入居可能日 | 検討リスト | 詳細 |
|---|---|---|---|---|---|---|
| 5 | 26.16坪 | 480,700円/月(18,376円/坪) | 232万円 | 2026年2月下旬 |
…新着物件
アクセス
九段北1丁目ビルの物件情報
九段北1丁目ビル(千代田区九段北)は九段下駅(5番出口)から徒歩2分の賃貸オフィスです。九段北1丁目ビルは九段下駅(5番出口)の他に神保町駅(A2番出口)徒歩5分、飯田橋駅(A5番出口)徒歩11分で利用も可能です。

