3階は現在募集がありません
1フロア募集区画あり

五番町TMビル 3階

前の写真 次の写真

物件概要

物件番号

387-00044-30

物件名

五番町TMビル

所在地

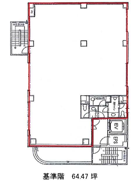
面積

64.47坪

賃料(共益費含)


入居日

募集終了

保証金

礼金

更新料

償却費

竣工

1993年11月

構造

RC

規模

地上5階

トイレ

男女別

空調

個別空調

エレベーター

セキュリティ

駐車場

耐震

新耐震基準

基準階天井高

空室延床面積

57.67坪

最寄駅

情報更新日

2025/11/12

五番町TMビルのテナント募集中区画

階数 面積 賃料(共益費含む) 保証金 入居可能日 検討リスト 詳細
1 57.67坪 応相談(応相談) 応相談 2026年5月中旬
…新着物件

アクセス

五番町TMビルの物件情報

五番町TMビル(千代田区五番町)は市ヶ谷駅(3番出口)から徒歩1分の賃貸オフィスです。
五番町TMビルは市ヶ谷駅(3番出口)の他に麹町駅(6番出口)徒歩7分、四ツ谷駅(麹町口)徒歩11分で利用も可能です。

近隣のエリア・駅から探す