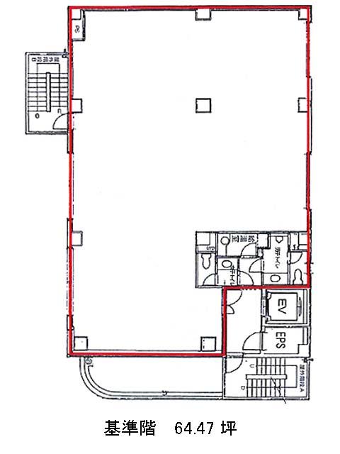
五番町TMビルのテナント募集中区画
| 階数 | 面積 | 賃料(共益費含む) | 保証金 | 入居可能日 | 検討リスト | 詳細 |
|---|---|---|---|---|---|---|
| 1 | 57.67坪 | 応相談(応相談) | 応相談 | 2026年5月中旬 |
…新着物件
アクセス
五番町TMビルの物件情報
五番町TMビル(千代田区五番町)は市ヶ谷駅(3番出口)から徒歩1分の賃貸オフィスです。五番町TMビルは市ヶ谷駅(3番出口)の他に麹町駅(6番出口)徒歩7分、四ツ谷駅(麹町口)徒歩11分で利用も可能です。

