7階は現在募集がありません
紅谷ビル 7階
物件概要
紅谷ビルのテナント募集中区画
現在、空室がございません。
アクセス
紅谷ビルの物件情報
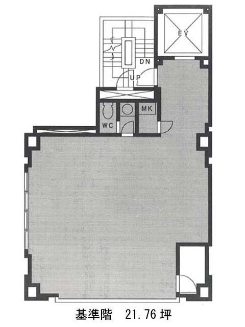
紅谷ビル(千代田区麹町)は麹町駅(1番出口)から徒歩2分の賃貸オフィスです。グレーの石造りとガラスが組み合わされた外観は洗練されており、クレバーな印象を受けます。1フロア1テナント仕様で基準階は約20坪。エレベーターからダイレクトインのタイプですが、エレベーター前は細く廊下のような造りになっていますので、奥に広がる室内とメリハリがあります。お手洗いは室内にひとつ設置済み。コンパクトな造りです。紅谷ビルは麹町駅1番出口の利用が便利ですが、半蔵門駅へも徒歩5分でアクセス可能。ビルの目の前にはセブンイレブンがあるほか、飲食店も充実しています。紅谷ビルは麹町駅(1番出口)の他に半蔵門駅(2番出口)徒歩5分、永田町駅(9b番出口)徒歩6分で利用も可能です。

