2階は現在募集がありません
2フロア募集区画あり

麹町高善ビル 2階

前の写真 次の写真

物件概要

物件番号

388-00132-10

物件名

麹町高善ビル

所在地

面積

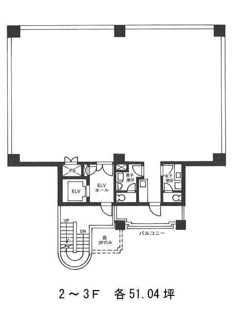
51.04坪

賃料(共益費含)


入居日

募集終了

保証金

礼金

更新料

償却費

竣工

1992年12月

構造

SRC

規模

地上6階

トイレ

男女別

空調

個別空調

エレベーター

セキュリティ

駐車場

耐震

新耐震基準

基準階天井高

2400mm

空室延床面積

73.00坪

最寄駅

情報更新日

2026/01/08

麹町高善ビルのテナント募集中区画

階数 面積 賃料(共益費含む) 保証金 入居可能日 検討リスト 詳細
5 28.00坪 723,800円/月(25,850円/坪) 336万円 相談
5 45.00坪 1,163,250円/月(25,850円/坪) 540万円
…新着物件

麹町高善ビルのアクセス

麹町高善ビルの物件情報

麹町高善ビル(千代田区麹町)は麹町駅(3番出口)から徒歩3分の賃貸オフィスです。
1992年竣工、地上6階建てSRC造のビルです。新耐震基準を満たしています。白い外壁で、明るく清潔感のある外観をしています。丸みを帯びた外階段が目印になるでしょう。貸室は長方形で、支柱が部屋の中央に無くレイアウトがしやすいでしょう。設備仕様として、EV1基・駐車場・個別空調・非常階段1箇所・給湯スペース・OAフロア・男女別トイレがあります。セキュリティとして安心の機械警備が導入されています。周辺は中層階のビルが建ち並ぶエリアです。
麹町高善ビルは麹町駅(3番出口)の他に半蔵門駅(2番出口)徒歩8分、四ツ谷駅(麹町口)徒歩8分で利用も可能です。

近隣のエリア・駅から探す