麹町高善ビルのテナント募集中区画
| 階数 | 面積 | 賃料(共益費含む) | 保証金 | 入居可能日 | 検討リスト | 詳細 |
|---|---|---|---|---|---|---|
| 5 | 44.88坪 | 987,360円/月(22,000円/坪) | 444万円 | 即 |
…新着物件
アクセス
麹町高善ビルの物件情報
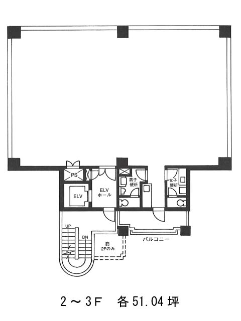
麹町高善ビル(千代田区麹町)は麹町駅(3番出口)から徒歩3分の賃貸オフィスです。1992年竣工、地上6階建てSRC造のビルです。新耐震基準を満たしています。白い外壁で、明るく清潔感のある外観をしています。丸みを帯びた外階段が目印になるでしょう。貸室は長方形で、支柱が部屋の中央に無くレイアウトがしやすいでしょう。設備仕様として、EV1基・駐車場・個別空調・非常階段1箇所・給湯スペース・OAフロア・男女別トイレがあります。セキュリティとして安心の機械警備が導入されています。周辺は中層階のビルが建ち並ぶエリアです。麹町高善ビルは麹町駅(3番出口)の他に半蔵門駅(2番出口)徒歩8分、四ツ谷駅(麹町口)徒歩8分で利用も可能です。

