麹町鶴屋八幡ビル 9階
物件概要
麹町鶴屋八幡ビルのテナント募集中区画
| 階数 | 面積 | 賃料(共益費含む) | 保証金 | 入居可能日 | 検討リスト | 詳細 |
|---|---|---|---|---|---|---|
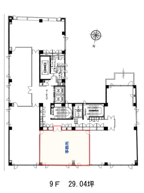
| 9 | 29.04坪 | 応相談(応相談) | 応相談 | 即 |
…新着物件
麹町鶴屋八幡ビルのアクセス
麹町鶴屋八幡ビルの物件情報
麹町鶴屋八幡ビル(千代田区麹町)は半蔵門駅(3a番出口)から徒歩2分の賃貸オフィスです。1990年竣工、10階建ての鉄骨鉄筋コンクリート造です。オフィスビルが建ち並ぶ新宿通りの一角にあります。エントランス前にはビル名にもなっている老舗和菓子店が営業中で、シックで素敵な雰囲気です。貸室内には柱が無く、共用部を室外にまとめた使いやすい間取りです。ビル内にエレベーターは2基設置され、その他に個別空調、OAフロア、男女別トイレ等を備えています。併設の駐車場からの車移動や、目の前のバス停を利用した移動も便利です。近くに銀行支店や郵便局が立地していますので、事務作業等もスムーズでしょう。麹町鶴屋八幡ビルは半蔵門駅(3a番出口)の他に麹町駅(1番出口)徒歩3分、永田町駅(9b番出口)徒歩9分で利用も可能です。

