麹町アネックスビルのテナント募集中区画
| 階数 | 面積 | 賃料(共益費含む) | 保証金 | 入居可能日 | 検討リスト | 詳細 |
|---|---|---|---|---|---|---|
| 6 | 47.60坪 | 766,700円/月(16,108円/坪) | 318万円 | 即 |
…新着物件
アクセス
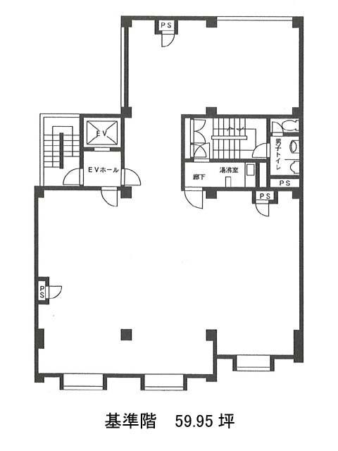
麹町アネックスビルの物件情報
麹町アネックスビル(千代田区麹町)は麹町駅(2番出口)から徒歩2分の賃貸オフィスです。1978年竣工で地上7階建てのビルです。レンガ作りの外観で視認性も高いでしょう。2004年にリニューアルが実施されていますので、全体的に内装は綺麗な状態に保たれております。設備面は、個別空調、光ファイバー、機械警備導入、エレベーターは1基設置されています。徒歩圏内にはコンビニエンスストアやカフェ、郵便局があるため、利便性にも優れています。麹町アネックスビルは麹町駅(2番出口)の他に半蔵門駅(1番出口)徒歩6分、永田町駅(9b番出口)徒歩8分で利用も可能です。

