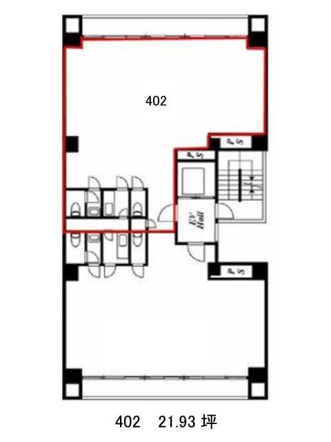
麹町1丁目3番地ビルのテナント募集中区画
| 階数 | 面積 | 賃料(共益費含む) | 保証金 | 入居可能日 | 検討リスト | 詳細 |
|---|---|---|---|---|---|---|
| 3 | 26.02坪 | 515,196円/月(19,800円/坪) | 281万円 | 2026年2月中旬 |
…新着物件
アクセス
麹町1丁目3番地ビルの物件情報
麹町1丁目3番地ビル(千代田区麹町)は半蔵門駅(3b番出口)から徒歩1分の賃貸オフィスです。1982年竣工で、10階建てのビルです。白を基調とした外壁は、清潔感を感じさせるでしょう。貸室内は窓が大きく、採光良好のため明るく、フリーアクセスの床を採用しているので、OA機器などの配線を気にする心配はございません。また男女別トイレと給湯室の水回りは全て室外に設置されており、執務空間との区分けがしっかりしています。付近にはコンビニエンスストア、書店、カフェや郵便局がございますので、利便性が高いです。麹町1丁目3番地ビルは半蔵門駅(3b番出口)の他に麹町駅(1番出口)徒歩5分、永田町駅(4番出口)徒歩10分で利用も可能です。

