4階は現在募集がありません
2フロア募集区画あり
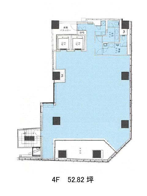
KOJIMACHI TERRACE 4階
物件概要
物件番号
388-00292-5物件名
KOJIMACHI TERRACE所在地
- 東京都千代田区麹町3-1
- アクセスマップ
面積
52.82坪賃料(共益費含)
−入居日
募集終了保証金
−礼金
−更新料
−償却費
−竣工
2018年9月構造
RC規模
地上11階/地下1階トイレ
男女別空調
個別空調エレベーター
有セキュリティ
駐車場
有耐震
新耐震基準基準階天井高
2700~2900mm空室延床面積
102.30坪情報更新日
2025/11/12KOJIMACHI TERRACEのテナント募集中区画
| 階数 | 面積 | 賃料(共益費含む) | 保証金 | 入居可能日 | 検討リスト | 詳細 |
|---|---|---|---|---|---|---|
| 6 | 59.44坪 | 応相談(応相談) | 応相談 | 2026年4月上旬 | ||
| 10 | 42.86坪 | 応相談(応相談) | 応相談 | 2026年5月上旬 |
…新着物件
アクセス
KOJIMACHI TERRACEの物件情報
KOJIMACHI TERRACE(千代田区麹町)は麹町駅(1番出口)から徒歩2分の賃貸オフィスです。新宿通りに面していて、貝坂通りへの角地にあるビルです。2018年9月に竣工したばかりのとても綺麗なビルです。徒歩2、3分の麹町駅と半蔵門駅の間ほどにあり交通のアクセスは大変良いでしょう。2019年度のグッドデザイン賞を受賞したこのビルは、反射率の高いミラーガラスと、ビル全体を覆う木質感があるフレームで作られたメッシュ装飾が個性的でとても視認性の高い建物です。エレベーターを降りてすぐ貸室に入るダイレクトインタイプで、男女別トイレが室内に設置されています。周辺は飲食店やコンビニ、郵便局の揃った利便性に恵まれたエリアです。KOJIMACHI TERRACEは麹町駅(1番出口)の他に半蔵門駅(2番出口)徒歩3分、永田町駅(9b番出口)徒歩8分で利用も可能です。

