6階は現在募集がありません
2フロア募集区画あり

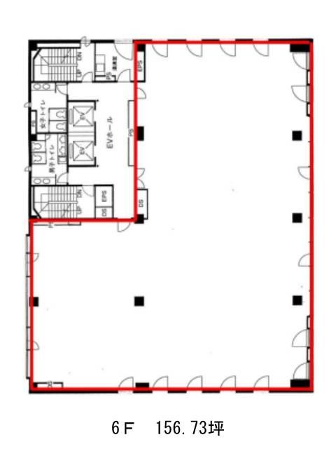
キューブワン麹町 6階

前の写真 次の写真

物件概要

物件番号

388-00039-60

物件名

キューブワン麹町

所在地

面積

156.73坪

賃料(共益費含)


入居日

募集終了

保証金

礼金

更新料

償却費

竣工

1993年9月

構造

S造

規模

地上9階/地下1階

トイレ

男女別

空調

個別空調

エレベーター

セキュリティ

駐車場

耐震

新耐震基準

基準階天井高

2500mm

空室延床面積

221.64坪

最寄駅

情報更新日

2025/11/26

キューブワン麹町のテナント募集中区画

階数 面積 賃料(共益費含む) 保証金 入居可能日 検討リスト 詳細
2 64.64坪 応相談(応相談) 応相談 2026年3月中旬
8 157.00坪 応相談(応相談) 応相談 2026年1月上旬
…新着物件

アクセス

キューブワン麹町の物件情報

キューブワン麹町(千代田区麹町)は麹町駅(2番出口)から徒歩3分の賃貸オフィスです。
地上9階建ての物件。外観はガラスと石材を組み合わせたモダンで上質な印象。エントランスは奥行きのある構造で、空間全体に重厚感をもたらしています。また、エレベーターホールは大理石調で明るく清潔感があり、来訪者にとっても安心感と信頼感を与える設計です。
貸室はL字に近い整形区画で、レイアウト自由度は高めです(分割貸しの実績あり)。水回り(男女別トイレ・給湯室)は共用部に設けられており、執務スペースを最大限に活用できます。エレベーター2基、OAフロア、個別空調、24時間機械警備、機械式駐車場など、安心して働ける設備も充実しています。
当物件は、新宿通り沿いで視認性が高く、角地立地ならではの開放感も魅力のひとつ。1階にはコンビニエンスストアが入居しており、ちょっとした買い物や昼食・備品調達にも便利な環境が整っています。
キューブワン麹町は麹町駅(2番出口)の他に四ツ谷駅(麹町口)徒歩6分、半蔵門駅(2番出口)徒歩8分で利用も可能です。

近隣のエリア・駅から探す