キューブワン麹町 2階
物件概要
物件番号
388-00039-95物件名
キューブワン麹町所在地
- 東京都千代田区麹町5-1
- アクセスマップ
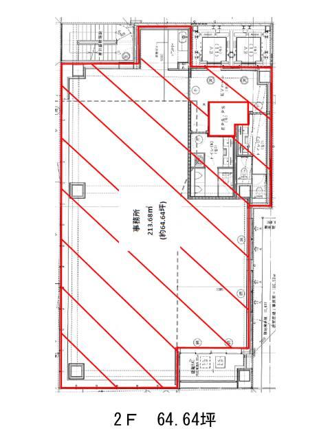
面積
64.64坪賃料(共益費含)
:応相談応相談
入居日
2026年3月中旬保証金
応相談礼金
なし更新料
なし償却費
なし竣工
1993年9月構造
S造規模
地上9階/地下1階トイレ
男女別空調
個別空調エレベーター
有セキュリティ
駐車場
有耐震
新耐震基準基準階天井高
2500mm空室延床面積
221.64坪情報更新日
2025/11/26キューブワン麹町のテナント募集中区画
| 階数 | 面積 | 賃料(共益費含む) | 保証金 | 入居可能日 | 検討リスト | 詳細 |
|---|---|---|---|---|---|---|
| 2 | 64.64坪 | 応相談(応相談) | 応相談 | 2026年3月中旬 | ||
| 8 | 157.00坪 | 応相談(応相談) | 応相談 | 2026年1月上旬 |
…新着物件
アクセス
キューブワン麹町の物件情報
キューブワン麹町(千代田区麹町)は麹町駅(2番出口)から徒歩3分の賃貸オフィスです。地上9階建ての物件。外観はガラスと石材を組み合わせたモダンで上質な印象。エントランスは奥行きのある構造で、空間全体に重厚感をもたらしています。また、エレベーターホールは大理石調で明るく清潔感があり、来訪者にとっても安心感と信頼感を与える設計です。
貸室はL字に近い整形区画で、レイアウト自由度は高めです(分割貸しの実績あり)。水回り(男女別トイレ・給湯室)は共用部に設けられており、執務スペースを最大限に活用できます。エレベーター2基、OAフロア、個別空調、24時間機械警備、機械式駐車場など、安心して働ける設備も充実しています。
当物件は、新宿通り沿いで視認性が高く、角地立地ならではの開放感も魅力のひとつ。1階にはコンビニエンスストアが入居しており、ちょっとした買い物や昼食・備品調達にも便利な環境が整っています。キューブワン麹町は麹町駅(2番出口)の他に四ツ谷駅(麹町口)徒歩6分、半蔵門駅(2番出口)徒歩8分で利用も可能です。

