麹町プレイスのテナント募集中区画
| 階数 | 面積 | 賃料(共益費含む) | 保証金 | 入居可能日 | 検討リスト | 詳細 |
|---|---|---|---|---|---|---|
| 3 | 51.99坪 | 1,544,103円/月(29,700円/坪) | 1,684万円 | 即 | ||
| 9 | 103.97坪 | 3,087,909円/月(29,700円/坪) | 3,368万円 | 相談 | ||
| 10 | 103.97坪 | 3,087,909円/月(29,700円/坪) | 3,368万円 | 相談 |
…新着物件
アクセス
麹町プレイスの物件情報
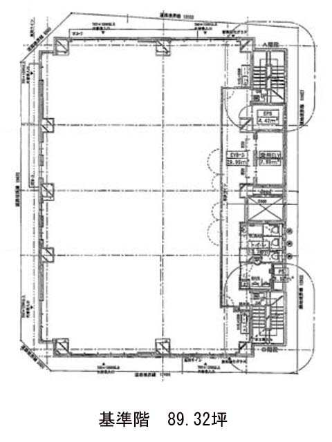
麹町プレイス(千代田区麹町)は半蔵門駅(2番出口)から徒歩2分の賃貸オフィスです。新宿通りに面した角地にあるビルです。2006年竣工の綺麗なビルです。開放感のあるエントランスや、グレード感を感じさせるガラス張りの外観がオシャレで視認性にも優れています。室外には男女別トイレがあります。また、床はOAフロア、セキュリティは機械警備を導入しています。間取りはほぼ長方形なのでレイアウトはしやすいでしょう。目の前の新宿通りは飲食店が多く、各種金融機関もありますので利便性も良好です。麹町プレイスは半蔵門駅(2番出口)の他に麹町駅(1番出口)徒歩3分、永田町駅(9b番出口)徒歩9分で利用も可能です。

