みさきBLD 4階
物件概要
物件番号
389-00010-30物件名
みさきBLD所在地
- 東京都千代田区神田三崎町3-10-2
- アクセスマップ
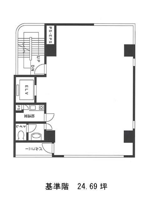
面積
24.69坪賃料(共益費含)
月額407,385円(16,500円/坪)
入居日
相談保証金
2,222,100円礼金
2ケ月更新料
新1ケ月償却費
なし竣工
1990年7月構造
RC規模
地上7階トイレ
男女共用空調
個別空調エレベーター
有セキュリティ
有駐車場
無耐震
新耐震基準基準階天井高
空室延床面積
74.07坪情報更新日
2026/03/11みさきBLDのテナント募集中区画
| 階数 | 面積 | 賃料(共益費含む) | 保証金 | 入居可能日 | 検討リスト | 詳細 |
|---|---|---|---|---|---|---|
| 2 | 24.69坪 | 407,385円/月(16,500円/坪) | 222万円 | 即 | ||
| 4 | 24.69坪 | 407,385円/月(16,500円/坪) | 222万円 | 相談 | ||
| 5 | 24.69坪 | 407,385円/月(16,500円/坪) | 222万円 | 即 |
…新着物件
みさきBLDのアクセス
みさきBLDの物件情報
みさきBLD(千代田区神田三崎町)は水道橋駅(西口)から徒歩3分の賃貸オフィスです。みさきBLDは水道橋駅(西口)の他に飯田橋駅(A5番出口)徒歩7分、九段下駅(7番出口)徒歩11分で利用も可能です。

