BRICK GATE 水道橋のテナント募集中区画
| 階数 | 面積 | 賃料(共益費含む) | 保証金 | 入居可能日 | 検討リスト | 詳細 |
|---|---|---|---|---|---|---|
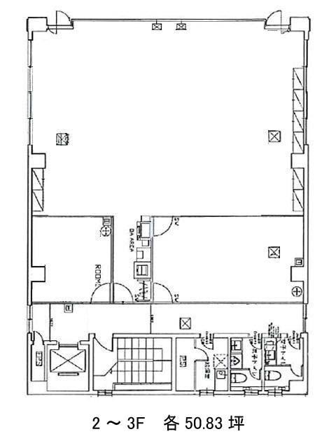
| 3 | 50.83坪 | 1,285,999円/月(25,300円/坪) | 701万円 | 2026年3月下旬 |
…新着物件
アクセス
BRICK GATE 水道橋の物件情報
BRICK GATE 水道橋(千代田区神田三崎町)は水道橋駅(東口)から徒歩4分の賃貸オフィスです。BRICK GATE 水道橋は水道橋駅(東口)の他に神保町駅(A2番出口)徒歩8分、九段下駅(7番出口)徒歩10分で利用も可能です。

