4階は現在募集がありません
1フロア募集区画あり

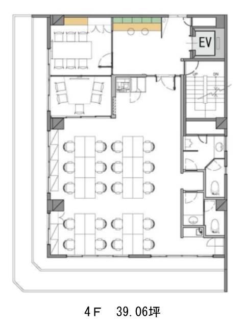
The corner 水道橋 4階

前の写真 次の写真

物件概要

物件番号

389-00254-2

物件名

The corner 水道橋

所在地

面積

39.06坪

賃料(共益費含)


入居日

募集終了

保証金

礼金

更新料

償却費

竣工

1983年5月

構造

RC

規模

地上5階

トイレ

男女別

空調

個別空調

エレベーター

セキュリティ

駐車場

耐震

新耐震基準

基準階天井高

2700mm

空室延床面積

56.03坪

最寄駅

情報更新日

2025/11/17

The corner 水道橋のテナント募集中区画

階数 面積 賃料(共益費含む) 保証金 入居可能日 検討リスト 詳細
2 56.03坪 1,479,192円/月(26,400円/坪) 806万円
…新着物件

アクセス

The corner 水道橋の物件情報

The corner 水道橋(千代田区神田三崎町)は水道橋駅(東口)から徒歩5分の賃貸オフィスです。
1983年竣工、地上5階建て。白山通りから路地を入った角地にあります。2022年の大規模リニューアルでセットアップオフィスとして生まれ変わりました。ビル内には執務スペースの他に受付、会議室、テレカンブース、ラウンジ等、機能的な設備が整っています。その他の設備として個別空調とOAフロアを備え、男女別トイレは専有部にございます。また、低層ながらエレベーターを設置しているため、フロア昇降のストレスもありません。周辺には教育機関が多く、安くて美味しい飲食点が豊富ですのでランチタイムも快適です。
The corner 水道橋は水道橋駅(東口)の他に神保町駅(A2番出口)徒歩8分、九段下駅(7番出口)徒歩10分で利用も可能です。

近隣のエリア・駅から探す